露光装置用光源ユニット 「マルチライト」
-
お気に入り
-
印刷
- 露光
- 半導体
- 液晶・ディスプレイ
均一照射光源として、精密パターン露光、半導体素子デバイスのパターン露光、ウェハ露光など、さまざまな用途に使用されます。
【この製品は、ウシオライティングの製品です】
・高平行度、高均一度のi線、h線、g線を照射可能
・フィルターを加えることで波長の選択が容易
・エアシャッターなどオプションも豊富
・電気以外のユーティリティが不要(500W以下)
・フィルターを加えることで波長の選択が容易
・エアシャッターなどオプションも豊富
・電気以外のユーティリティが不要(500W以下)
露光用ランプハウス。アライナー用ランプハウスとして、主に以下の用途で使用されています。
半導体製造
半導体焼付、半導体マスク検査、ウェーハ周辺露光、ウェーハ全面露光、ウェハキズ検査
精密機器
CD光ピックアップ用レンズ接着、磁気ヘッド接着、ファイバーコーティング、電子部品接着、水晶発振子露光、TAB露光、FPC露光、大面積投影露光装置
その他
液晶アライナー、各種光学実験 など
半導体製造
半導体焼付、半導体マスク検査、ウェーハ周辺露光、ウェーハ全面露光、ウェハキズ検査
精密機器
CD光ピックアップ用レンズ接着、磁気ヘッド接着、ファイバーコーティング、電子部品接着、水晶発振子露光、TAB露光、FPC露光、大面積投影露光装置
その他
液晶アライナー、各種光学実験 など
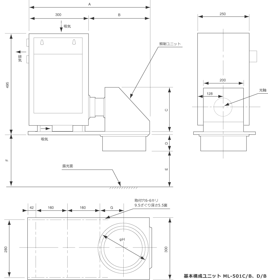
250W シリーズ
光源ユニット・照射光学ユニット 外観図
【外観図.1】 照射径φ100の場合
【外観図.2】 照射径φ135、φ165、φ200の場合
仕様
| 照射光学 ユニット型式 |
照射径 (φ) |
照度(mW/cm2 ) | 照度均一度 (%) |
視角 | 照射方向 | A | B | C | D | E | F | G | H | I | 重量 | 外観図 | |
|---|---|---|---|---|---|---|---|---|---|---|---|---|---|---|---|---|---|
| II | IG | ||||||||||||||||
| PM25C-100 | 100 | 25以上 | 35以上 | ±5 | ±3.5° | 任意 | 160 | 299 | 234 | 120 | 151 | 176 | 279 | 86 | 34 | 約16kg | 1 |
| PM25C-135 | 135 | 14以上 | 20以上 | ±5 | ±2.6° | 90度ごと 4方行 |
223 | 432 | 330 | 180 | 239 | 225 | 296 | 113 | 96 | 約17kg | 2 |
| PM25C-165 | 165 | 9以上 | 13以上 | ±5 | ±2.2° | 253 | 507 | 405 | 215 | 314 | 270 | 296 | 143 | 96 | 約18kg | 2 | |
| PM25C-200 | 200 | 6以上 | 8以上 | ±5 | ±1.8° | 303 | 607 | 505 | 265 | 414 | 325 | 296 | 173 | 96 | 約18kg | 2 | |
※照度データの数値は当社製受光器(II:UVD-365PD、IG:UVD-405PD)で測定したものです。(初期保障値)
500W シリーズ
光源ユニット・照射光学ユニット 外観図
【外観図.1】 照射径φ100 の場合
【外観図.2】 照射径φ135、φ160、φ200の場合
【外観図.3】 照射径φ220 の場合
仕様
| 照射光学 ユニット型式 |
照射径 (φ) |
照度(mW/cm2 ) | 照度均一度 (%) |
視角 | 照射方向 | A | B | C | D | E | F | G | H | 重量 | 外観図 | |
|---|---|---|---|---|---|---|---|---|---|---|---|---|---|---|---|---|
| II | IG | |||||||||||||||
| PM50C-100A1 | 100 | 72以上 | 106以上 | ±5 | ±4.4° | 任意 | 503 | 203 | 144 | 229 | 145.5 | 169.5 | 143 | 167 | 約25kg | 1 |
| PM50C-135A1 | 135 | 40以上 | 58以上 | ±5 | ±3.2° | 下方照射 | 574 | 274 | 225 | 71 | 200 | 271 | 82 | φ208 | 約30kg | 2 |
| PM50C-160A1 | 160 | 28以上 | 41以上 | ±5 | ±2.8° | 612 | 312 | 225 | 88 | 235.5 | 323.5 | 120 | φ232 | 約30kg | 2 | |
| PM50C-200A1 | 200 | 18以上 | 26以上 | ±5 | ±2.2° | 632 | 332 | 225 | 181 | 295.5 | 476.5 | 120 | φ276 | 約30kg | 2 | |
| PM50C-220A1 | 220 | 15以上 | 21以上 | ±5 | ±2.0° | 607 | 307 | 240 | 203 | 320 | 560 | 182 | φ294 | 約30kg | 3 | |
※照度データの数値は当社製受光器(II:UVD-365PD、IG:UVD-405PD)で測定したものです。(初期保障値)